ホーム
>
賃貸物件一覧
>
荒川区西日暮里ビル1階
×
❮
❯
戻る
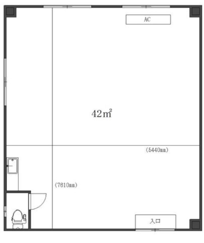
荒川区西日暮里ビル1階
金額情報は
スタンダードプラン
でご覧いただけます
画像を見るには
アップグレードが必要です
会員登録を行うと、すべての物件情報をご覧いただけます。
会員登録を行う
この物件にお問い合わせ
LINEより友だち追加を行い、
物件についてお問い合わせください。
LINEでお問い合わせする
物件名
荒川区西日暮里ビル1階
住所
東京都荒川区西日暮里
建築年
1992年
面積
42㎡
間取り
所在階
1階
総階数
3階建
所在地
東京都荒川区西日暮里
構造
鉄骨造
用途地域
契約形態
普通
契約期間
2
種別
ビル
事業タイプ
レンスペ
最寄り駅
日暮里駅 徒歩6分
備考
-
お気に入り
会員登録
ログイン
物件をさがす
物件を載せる
コラム
セミナー・イベント情報
質問箱
物件をさがす
コラム
セミナー・イベント
質問部屋
お気に入り
会員登録
ログイン
プライバシーポリシー
会社概要
お問い合わせ
↑
準備中です
この機能は現在準備中です。
もうしばらくお待ちください。
閉じる